Contact
Communities
Available Homes
Communities
About
Warranty
Contact
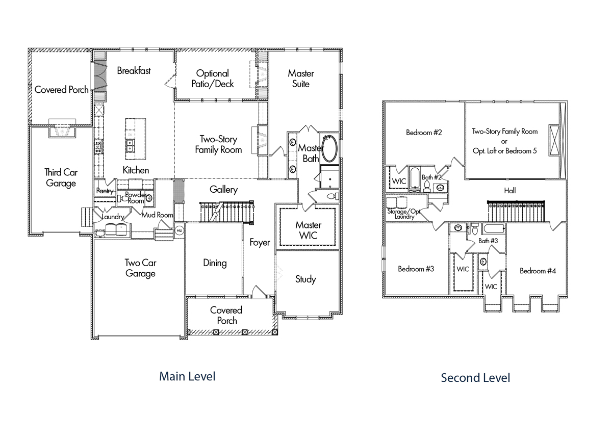
The Wilmont
4-5
Bedrooms
3 full and 1 half
Bathrooms
SqFt